桂林冰蓝装饰 2018-08-04 18:04:31
项目简介:实量建筑面积320平方,双层复式楼,工程总造价18.6万元,室内拆除、水电防水、贴砖、卧室衣柜、客厅餐厅吊顶、电视墙、卧室吊顶背景,全房腻子乳胶漆。主材甲方自购。
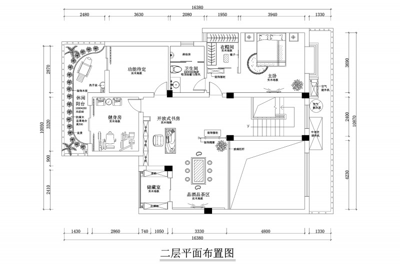
原始图与平面图
入户门厅效果图
厨房隔断效果图
电视墙效果图
沙发背景效果图
客厅吊顶效果图
餐厅效果图
二层书房效果图
二层主卧效果图
(1)所有用户匀可以参与投诉。
(2)所有用户本着诚信、负责的态度,如发现当前网页有侵权、涉黄等违反国家相关规定的内容,请及时参与投诉,每个IP地址每个月对同一张网页只能投诉1次,投诉时请选择原因。
(3)当前网页投诉大于10次后,平台将会收到警告提示并要求整改,经审核整改合格后投诉次数归零。
(4)收到警告提示未整改的平台,投诉到达20次后,当前网页将不能访问,平台将被要求强行整改,经审核整改合格后投诉次数归零,网页可继续访问。
(5)用户不能进行无理无据、报复性投诉,类似投诉次数大于10次,将被列入黑名单不能对任何网页进行投诉。
(6)月底未满10次投诉,下个月将会自动归零。
网页投诉
您当前的IP地址:216.73.217.115()
你要投诉的网页信息:
隶属企业:桂林冰蓝装饰
网页编号:bl-lc-1-4-21
已被投诉:0次
投诉原因:无